250 - 630 sq. ft.
| Project Area : | 1 Acres | Total Tower : | 1 Towers |
| Configuration : | Office Spaces | Property Type : | commercial |
| City : | Mumbai | Possession : | September 2026 |
Rera Number : P51700050421
A growing business deserves a world-class office that signals your aspiration and commitment to the world. Immerse yourself in sweeping views of the lush Pirojsha Nagar greens through the full-height windows at Lodha Signet, Vikhroli. Lodha Signet combines space efficient offices with a sense of prestige. Each floor will have stylishly appointed lobbies and a range of bare-shell layouts that can be outfitted and combined to suit your needs. These spaces are designed to match your potential, not the size of your operation.
A dedicated section designed to be perfect for private clinics and diagnostic centres; with an exclusive entrance lobby. Located close to a great catchment of premium residential projects and upcoming Metro lines, it offers the perfect ecosystem. This premier enclave offers unmatched convenience and accessibility for healthcare professionals and their clients. Located in the heart of LBS Marg, near R City Mall. In the region's first and only central business district. Connected to key transport hubs in the Ghatkopar-Vikhroli region via road, rail and metro. Lodha Signet's location is a rare confluence of all those elements that a business needs to succeed.
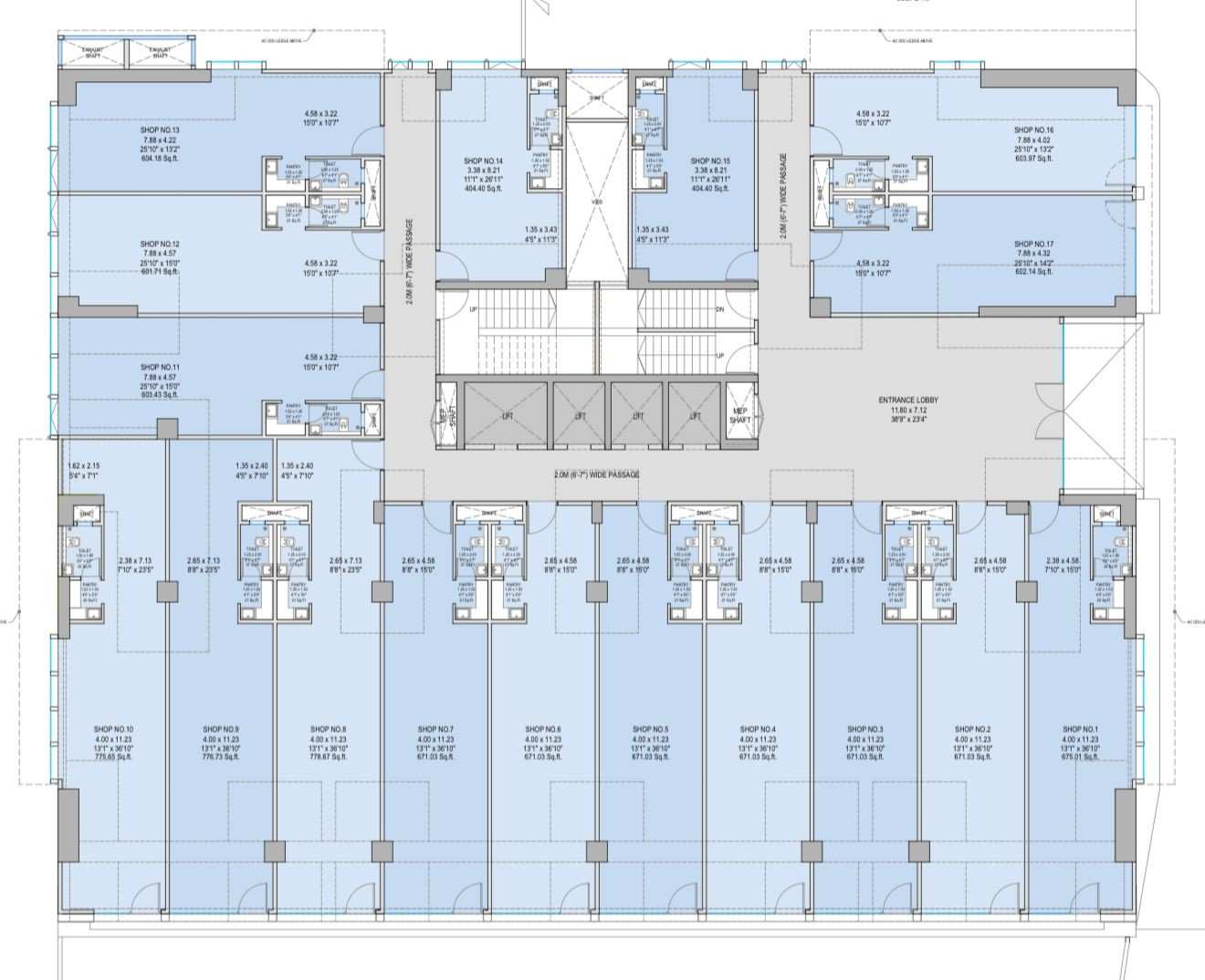
A manicured landscape and contemporary facade distinguish this building from typical offices. The lofty lobby, with escalators and elevators, ensures easy access. Each floor has separate entrances and lobbies for a seamless client experience, enhancing your business's stature.
Lodha Signet, on LBS Marg near R-City Mall, offers prime retail footfall and walk-to-work convenience. Surrounded by premium residential areas and with easy access to Ghatkopar and Vikhroli railway stations, it provides a well-rounded environment with all city amenities nearby.






| Configuration | RERA Area | Agreement Value | Action |
|---|---|---|---|
| Office Space Type 1 | 250 | 1.09 Cr* | Price Breakup |
| Office Space Type 2 | 350 | 1.49 Cr* | Price Breakup |
| Office Space Type 3 | 485 | 1.99 Cr* | Price Breakup |
| Office Space Type 4 | 630 | 2.49 Cr* | Price Breakup |
EMI ₹ 0.00
Interest to be paid ₹ 0.00
Total of Payments
(Principal + Interest) ₹ 0.00






One of India's leading real estate firms, the Lodha Group is renowned for building urbane homes that offer tranquil living. The developer caters to all segments, be it luxury or budget-friendly residences, and has built iconic projects all around Mumbai, Thane, and Navi Mumbai. The firm has a grand real estate legacy and has delivered around 50,000+ dream projects in the past 7 years. Few of the projects by Lodha Group are recognized as some of the benchmark projects in real estate.
2 BHK, 3 BHK, 3.5 BHK & 4 BHK
851 - 1710 sq. ft.
2 BHK, 2.5 BHK, 3 BHK, 4 BHK & 5 BHK
780 - 3325 sq. ft.
2 BHK, 2.5 BHK, 3 BHK & 3.5 BHK
710 - 1146 sq. ft.
2 BHK, 2.5 BHK, 3 BHK, 3.5 BHK & 4.5 BHK
783 - 2203 sq. ft.